2603 Developer/Home Builder Stock Plan Set

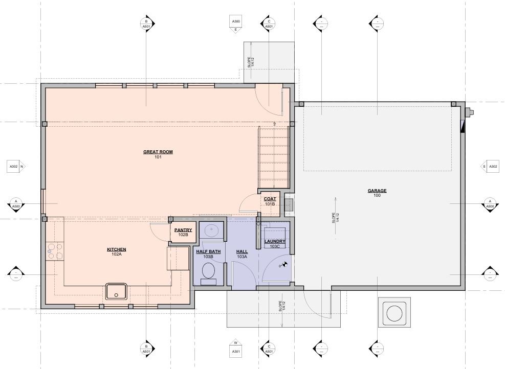
A 2-story colonial style home designed for micro lots and featuring three bedrooms, one full bathroom, one ¾ bathroom, one powder room, and a two-car garage. Construction type is V-B with 2×6 exterior framing on a 4” concrete slab on grade with stem walls.

The 2603 stock plan set is delivered through an AIA Document B107-2020 Standard Form of Agreement Between Developer-Builder and Architect for Prototype(s) for a One- or Two-Family Residential Project with Limited Architectural Services. The developer/home builder has the option of purchasing full construction documents including details for $1776 through www.1776homeplans.com, or hiring JJMA for building permitting services, modifications, and customizations, which are billed at $250 per hour. Structural calculations are by Middleton Structural & Design with a flat fee of $5000.

Next
Next

2604 Stock Plans